Löggiltir fasteignasalar innan Félags fasteignasala:
Ásdís Ósk Valsdóttir
Guðbrandur Jónasson
Ásdís Rósa Ásgeirsdóttir
Böðvar Reynisson
Sveinbjörn Rosén Guðlaugsson
Jóhanna K. Gustavsdóttir
Pétur Ísfeld Jónsson
Anna Laufey Sigurðardóttir
Vista
svg

1533

svg

1240  Skoðendur

svg

Skráð  14. nóv. 2025

fjölbýlishús

Arnarsmári 26

201 Kópavogur

86.700.000 kr.

814.085 þ.kr./m2
Fasteignanúmer

F2218286

Fasteignamat

73.500.000 kr.

Brunabótamat

56.800.000 kr.

Áhvílandi

0 kr.

Arion banki – Reikna lán
Upplýsingar
Verðsaga
svg
Byggt 1994
svg
106,5 m²
svg
5 herb.
svg
1 baðherb.
svg
4 svefnh.
svg
Garður

Lýsing

EIGNIN ER SELD OG ER Í FJÁRMÖGNUNARFERLI - Hafirðu áhuga á eigninni geturðu sent tölvupóst á bodvar@husaskjol.is og ég get aðstoðað þig við að finna sambærilega eign, nú eða ef svo ólíklega vill til að salan á þessari eign gengur til baka, þá verður þú látin(n) vita.


Böðvar Reynisson löggiltur fasteignasali gefur upplýsingar og sýnir eignina s. 766-8484 eða bodvar@husaskjol.is


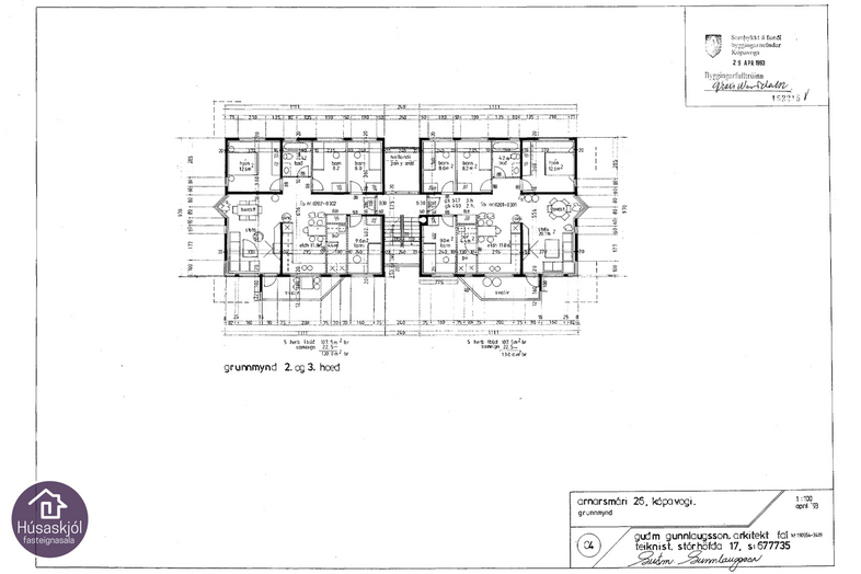
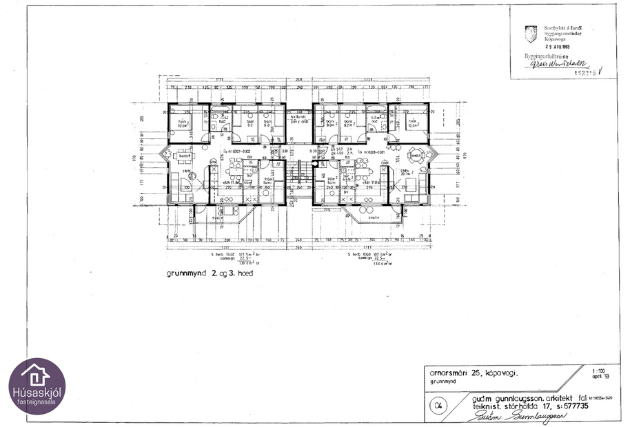
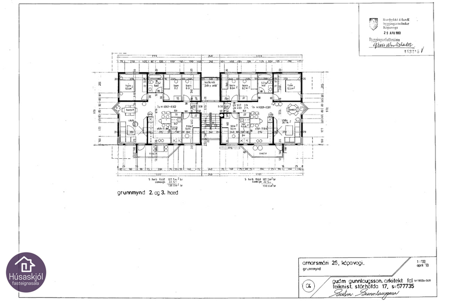
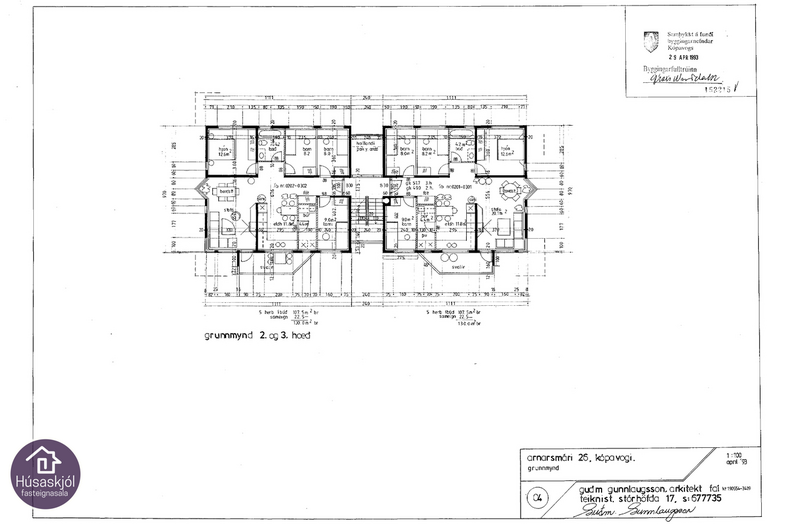
Falleg, björt og vel skipulögð 5 herbergja útsýnisíbúð á eftirsóttum stað í Smárahverfinu. Stutt er í alla helstu þjónustu s.s. Smáralind, Smáratorg, skóla, leikskóla, íþróttasvæði Breiðablik/Fífan, líkamsrækt o.m.fl. Einstaklega fallegt útsýni er úr öllum helstu rýmum íbúðarinnar og af svölum. Húsinu er vel viðhaldið og var steypuviðgert og málað sl. sumar.


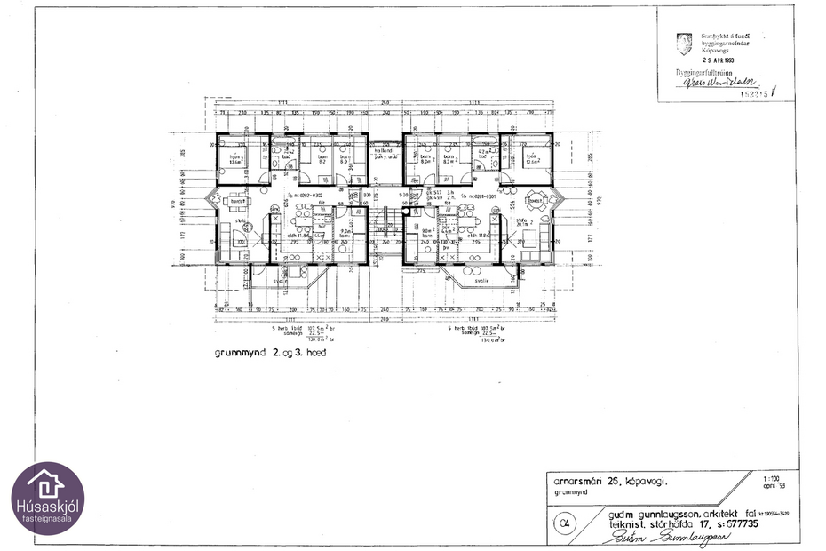
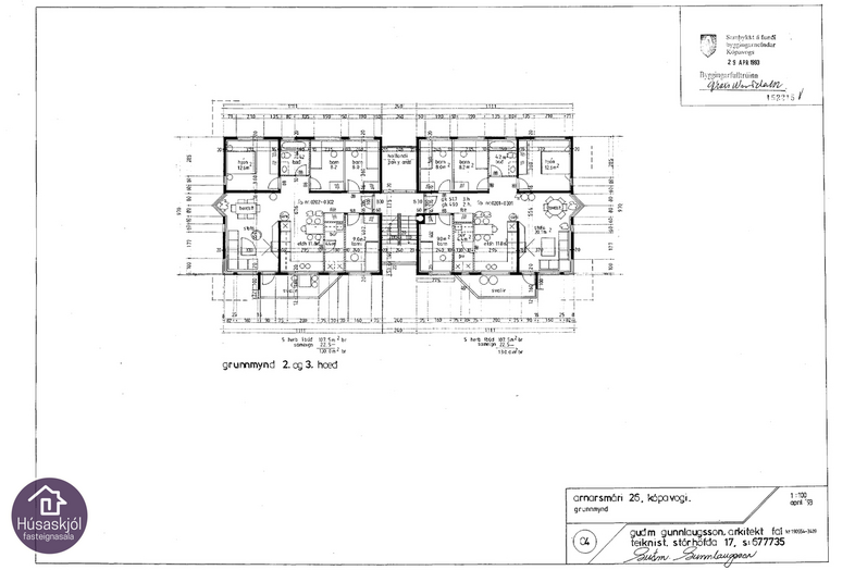
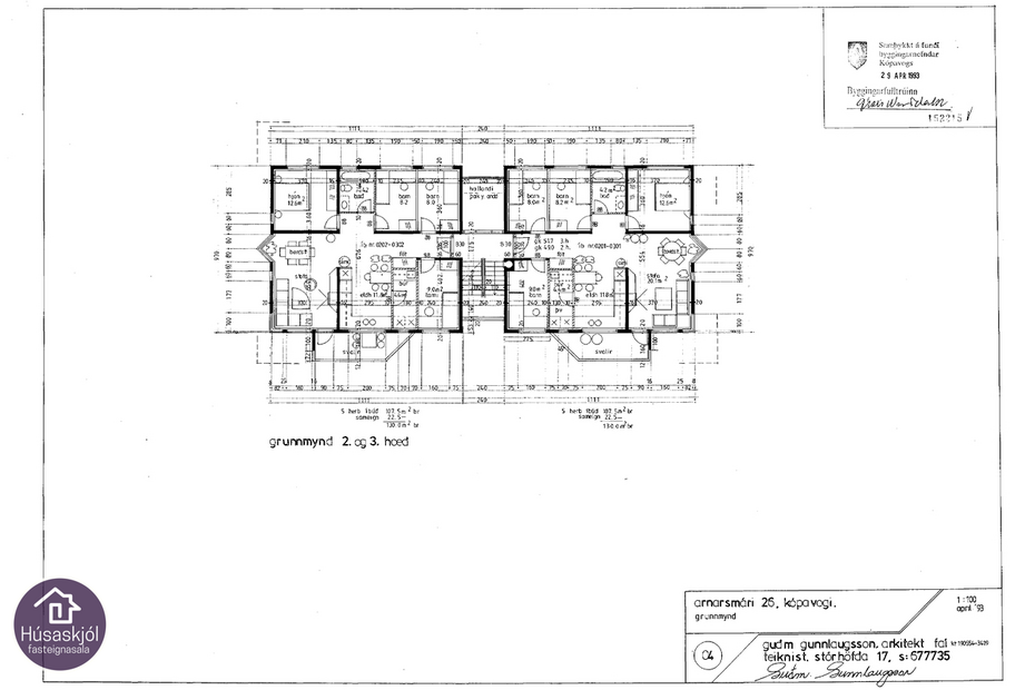
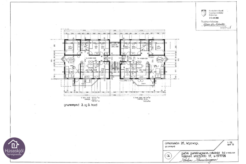
Eignin skiptist í forstofu, eldhús, stofu, 4x svefnherbergi, baðherbergi, þvottahús innan íbúðar og geymsluloft yfir íbúð. Sérgeymsla í kjallara. Hjólageymsla í sameign.


Forstofa með flísum á gólfi og rúmgóðum fataskáp.
Eldhús er rúmgott með flísum á gólfi og hvítri L innréttingu með, innfelldum ofni, helluborði og gufugleypi í efri skápum yfir helluborði. Tengi er fyrir uppþvottavél. Nægt rými fyrir borð og stóla. Útsýni í vestur.
Þvottahús/búr/ræstirými er inn af eldhúsi og þar er gengt upp á geymsluloft með niðurfellanlegum stiga. Tengi er fyrir þvottavél og þurrkara. Vinnuborð er yfir vélum, hillur á veggjum og lagnir fyrir vaski.
Stofan er rúmgóð og björt og nýtist vel sem borðstofa og stofa. Parket er á gólfi, gólfsíður gluggi í suður og góðir gluggar í vestur þar sem gengt út á vestur svalir með fallegu útsýni.
Svefnherbergi I er á hægri hönd frá forstofu þegar gengið er inn í íbúðina, parket á gólfi, fataskápur og útsýni í vestur.
Svefnherbergi II er á vinstri hönd frá forstofu þegar gengið er inn í íbúðina, parket á gólfi, fataskápur og útsýni í austur.
Svefnherbergi III er á vinstri hönd þegar komið er inn í alrými íbúðar frá forstofu, parket á gólfi, rúmgóður fataskápur og útsýni í austur.
Baðherbergið er á á vinstri hönd frá alrými, innrétting með handlaug, speglaskápur yfir handlaug, skápur er einnig á vegg yfir ofni, opnanlegur gluggi, salerni og baðkar með sturtu. Flísar á gólfi, baðhlið og langt upp með veggjum.
Svefnherbergi IV / Hjónaherbergið er rúmgott, parket á gólfi og gott skápapláss. Útsýni í austur.


Upplýsingar um viðhald skv. seljanda:


  • Húsið málað að utan og skipt um gler í 18 gluggum sumar 2025
  • Skipt um einhver gler í gluggum 2017 eða 2018
  • Skipt hefur verið út krönum á ofnum í íbúðinni og á stigagangi

Fylgdu Húsaskjóli á TikTok


Húsaskjól fasteignasala - af því að þín fasteign skiptir máli

Ertu í söluhugleiðingum? Smelltu hér til að fá frítt verðmat
Ertu að leita að sambærilegri íbúð? Smelltu hér til að skrá þig á kaupóskalistann okkar

Fylgdu okkur á Instagram
Skoðaðu hvað okkar viðskiptavinir hafa um Skoðaðu hvað okkar viðskiptavinir hafa um okkur að segja
Hvað er í gangi á fasteignamarkaðnum? Skráðu þig á Fréttaskot Húsaskjóls

Húsaskjól advices potential buyers who do not speak or read icelandic to have a translator present when they view and sign an offer, sales agreement and other documents relating to the purchase of the property.​


Um skoðunar- og aðgæsluskyldu:
Í lögum um fasteignakaup nr. 40/2002 er kveðið á um ríka skoðunarskyldu kaupenda á fasteignum. Vill Húsaskjól fasteignasala því skora á væntanlega kaupendur að kynna sér vel ástand fasteigna fyrir kauptilboðsgerð og leita til þar til bærra sérfræðinga um nánari skoðun.


Forsendur söluyfirlits:
Söluyfirlit er samið af fasteignasala í samræmi við ákvæði laga nr. 70/2015. Þær upplýsingar sem fram koma í söluyfirliti þessu eru sóttar í opinberar skrár, til seljanda sjálfs og eftir atvikum til húsfélags. Seljandi veitir upplýsingar um eign í samræmi við upplýsingaskyldu laga um fasteignakaup nr. 40/2002. Fasteignasali sannreynir að þær upplýsingar séu réttar með sjónskoðun á eigninni.
Fasteignasali getur ekki fullyrt um ástand og eiginleika þeirra hluta fasteigna sem ekki eru aðgengilegir og sjást ekki berum augum, t.d. lagnir, dren, skólp og þak.


Gjöld sem kaupandi þarf að standa straum af vegna kaupanna:
1. Stimpilgjald af kaupsamningi, fyrstu kaup (0,4%), almenn kaup (0,8%), lögaðilar (1,6%) af heildarfasteignamati.
2. Þinglýsingargjald af kaupsamningi, veðskuldabréfi, mögulegu veðleyfi o.fl. - kr. 2.700 af hverju skjali.
3. Lántökugjald lánastofnunar - fast gjald. Sjá vefsíðu viðkomandi lánastofnanna
4. Umsýslugjald til fasteignasölu skv. kauptilboði


Húsaskjól fasteignasala

Húsaskjól fasteignasala

Hlíðasmára 2, 201 Kópavogur
Ár
Fasteignamat
Kaupverð
Stærð
Fermetraverð
28. des. 2018
43.600.000 kr.
51.750.000 kr.
106.5 m²
485.915 kr.
18. maí. 2017
35.100.000 kr.
50.000.000 kr.
106.5 m²
469.484 kr.
15. jún. 2007
19.880.000 kr.
25.800.000 kr.
106.5 m²
242.254 kr.
Byggt á upplýsingum úr Þjóðskrá Íslands frá 2006-2025
Húsaskjól fasteignasala

Húsaskjól fasteignasala

Hlíðasmára 2, 201 Kópavogur