Upplýsingar
Verðsaga
Byggt 2019
47,3 m²
1 herb.
1 baðherb.
Lyfta
Lýsing
Fasteignasalan Hvammur 466 1600
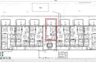
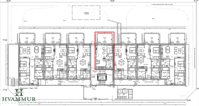
Davíðshagi 6 íbúð 104 – studíóíbúð á jarðhæð í 3ja hæða fjölbýli með lyftu í Hagahverfi - stærð 47,3 m²
Eignin skiptist í forstofu, eldhús, alrými og baðherbergi með þvottaaðstöðu. Sér geymsla er í kjallara.
Forstofa er með harðparketi á gólfi.
Eldhús: Innrétting er úr plastlagðri struktur-eik. Svart keramik helluborð, stál bakaraofn, innbyggð vifta og ísskápur.
Alrými er með harðparketi á gólfi og þaðan er farið út á 12,8 m² suður verönd.
Baðherbergi: Innrétting er úr plastlagðri struktur-eik. Gólf og veggir eru flísalagt, vegghengt wc og sturtuhorn úr gleri. Innrétting fyrir þvottavél og þurrkara í vinnuhæð.
Sér rúmgóð geymsla er í kjallara, 10,0 m² að stærð og þar eru flísar á gólfi.
Annað
- Gólfhiti er í öllum rýmum íbúðar.
- Sólbekkir eru formbeygðir úr hvítu harðplasti.
- Innihurðir eru úr plastlagðri struktur-eik.
- Ljósleiðari er kominn inn og tengdur.
- Stigahús er með flísum á jarðhæð en teppi á stigagöngum.
- Hjóla- og vagnageymsla er flísalögð.
- Húsið var reist af Hyrnunni.
- Íbúðin getur verið laus til afhendingar fljótlega.
Um skoðunar- og aðgæsluskyldu:
Í lögum um fasteignakaup nr. 40/2002 er kveðið á um ríka skoðunarskyldu kaupenda á fasteignum. Fasteignasalan Hvammur skorar því á væntanlega kaupendur að kynna sér vel ástand fasteigna fyrir kauptilboðsgerð og leita til þar til bærra sérfræðinga um nánari skoðun ef með þarf.
Forsendur söluyfirlits:
Söluyfirlit er samið af fasteignasala í samræmi við ákvæði laga nr. 70/2015. Þær upplýsingar sem fram koma í söluyfirliti þessu eru sóttar í opinberar skrár, til seljanda sjálfs og eftir atvikum til húsfélags. Seljandi veitir upplýsingar um eign í samræmi við upplýsingaskyldu laga um fasteignakaup nr. 40/2002. Fasteignasali sannreynir að þær upplýsingar séu réttar með sjónskoðun á eigninni. Fasteignasali getur ekki fullyrt um ástand og eiginleika þeirra hluta fasteigna sem ekki eru aðgengilegir og sjást ekki berum augum, t.d. lagnir, dren, skólp og þak.
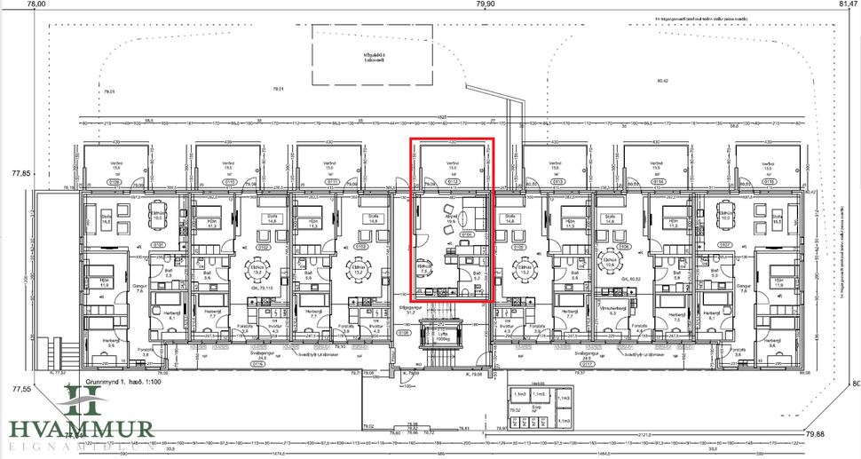
Davíðshagi 6 íbúð 104 – studíóíbúð á jarðhæð í 3ja hæða fjölbýli með lyftu í Hagahverfi - stærð 47,3 m²
Eignin skiptist í forstofu, eldhús, alrými og baðherbergi með þvottaaðstöðu. Sér geymsla er í kjallara.
Forstofa er með harðparketi á gólfi.
Eldhús: Innrétting er úr plastlagðri struktur-eik. Svart keramik helluborð, stál bakaraofn, innbyggð vifta og ísskápur.
Alrými er með harðparketi á gólfi og þaðan er farið út á 12,8 m² suður verönd.
Baðherbergi: Innrétting er úr plastlagðri struktur-eik. Gólf og veggir eru flísalagt, vegghengt wc og sturtuhorn úr gleri. Innrétting fyrir þvottavél og þurrkara í vinnuhæð.
Sér rúmgóð geymsla er í kjallara, 10,0 m² að stærð og þar eru flísar á gólfi.
Annað
- Gólfhiti er í öllum rýmum íbúðar.
- Sólbekkir eru formbeygðir úr hvítu harðplasti.
- Innihurðir eru úr plastlagðri struktur-eik.
- Ljósleiðari er kominn inn og tengdur.
- Stigahús er með flísum á jarðhæð en teppi á stigagöngum.
- Hjóla- og vagnageymsla er flísalögð.
- Húsið var reist af Hyrnunni.
- Íbúðin getur verið laus til afhendingar fljótlega.
Um skoðunar- og aðgæsluskyldu:
Í lögum um fasteignakaup nr. 40/2002 er kveðið á um ríka skoðunarskyldu kaupenda á fasteignum. Fasteignasalan Hvammur skorar því á væntanlega kaupendur að kynna sér vel ástand fasteigna fyrir kauptilboðsgerð og leita til þar til bærra sérfræðinga um nánari skoðun ef með þarf.
Forsendur söluyfirlits:
Söluyfirlit er samið af fasteignasala í samræmi við ákvæði laga nr. 70/2015. Þær upplýsingar sem fram koma í söluyfirliti þessu eru sóttar í opinberar skrár, til seljanda sjálfs og eftir atvikum til húsfélags. Seljandi veitir upplýsingar um eign í samræmi við upplýsingaskyldu laga um fasteignakaup nr. 40/2002. Fasteignasali sannreynir að þær upplýsingar séu réttar með sjónskoðun á eigninni. Fasteignasali getur ekki fullyrt um ástand og eiginleika þeirra hluta fasteigna sem ekki eru aðgengilegir og sjást ekki berum augum, t.d. lagnir, dren, skólp og þak.
Ár
Fasteignamat
Kaupverð
Stærð
Fermetraverð
29. mar. 2019
20.600.000 kr.
21.500.000 kr.
47.3 m²
454.545 kr.
16. maí. 2018
1.395.000 kr.
20.200.000 kr.
47.3 m²
427.061 kr.
Byggt á upplýsingum úr Þjóðskrá Íslands frá 2006-2026