Upplýsingar
Verðsaga
Byggt 2019
81,5 m²
4 herb.
1 baðherb.
3 svefnh.
Sérinngangur
Opið hús: 19. janúar 2026
kl. 16:15
til 16:45
Opið hús: Halldóruhagi 4 104, 600 Akureyri, Íbúð merkt: 01 01 04. Eignin verður sýnd mánudaginn 19. janúar 2026 milli kl. 16:15 og kl. 16:45.
Lýsing
Kasa fasteignir 461-2010.
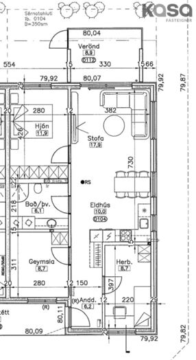
Halldóruhagi 4 íbúð 104 - Virkilega falleg og vel skipulögð 3-4 herbergja 81,5 fm endaíbúð á jarðhæð í nýlegu húsi í Hagahverfi.
Eignin skiptist í forstofu, stofu og eldhús í sama rými, baðherbergi með þvottaaðstöðu og þrjú svefnherbergi ( eitt skráð sem geymsla á teikningu ) ásamt verönd til suðurs.
Forstofa: Þar er parket á gólfum og opið fatahengi með lýsingu og skúffu.
Stofa: Er rúmgóð og björt með gráleitu parketi á gólfum, gengið er út á verönd frá stofu.
Eldhús: Þar er parket á gólfum, falleg innrétting með góðu skápa og skúffuplássi. Innbyggður ísskápur og uppþvottavél. Bakaraofn í vinnuhæð.
Baðherbergi: Er flísalagt á gólfum og hluta af veggjum, falleg innrétting með skápum og einnig er innrétting fyrir þvottavél og þurkkara. Upphengt salerni, sturta og handklæðaofn.
Svefnherbergi: Eru þrjú, hjónaherbergi er rúmgott með stórum skáp, tvöfaldur skápur er í hinum herbergjunum annað þeirra herbergja var teiknuð sem geymsla en hefur frá uppahafi verið svefnherbergi. Parket er á gólfum í svefnherbergjum.
Geymsla: sameiginleg geymsla er á hæðinni.
- Hiti í gólfum
- Innbyggð uppþvottvél og ísskápur.
Nánari upplýsingar í síma 461-2010 eða kasa@kasafasteignir.is
------------
Skoðunarskylda:
Í lögum um fasteignakaup nr. 40/2002 er kveðið á um ríka skoðunarskyldu kaupenda á fasteignum. Kasa fasteignir benda væntanlegum kaupendum á að kynna sér vel ástand fasteigna fyrir kauptilboðsgerð og leita til þar til bærra sérfræðinga um nánari skoðun ef þurfa þykir.
Forsendur söluyfirlits:
Söluyfirlit er samið af fasteignasala í samræmi við ákvæði laga nr. 70/2015. Þær upplýsingar sem fram koma í söluyfirliti þessu eru sóttar í opinberar skrár, til seljanda sjálfs og eftir atvikum til húsfélags. Seljandi veitir upplýsingar um eign í samræmi við upplýsingaskyldu laga um fasteignakaup nr. 40/2002. Fasteignasali sannreynir að þær upplýsingar séu réttar með sjónskoðun á eigninni. Fasteignasali getur ekki fullyrt um ástand og eiginleika þeirra hluta fasteigna sem ekki eru aðgengilegir og sjást ekki berum augum, t.d. lagnir, dren, skólp og þak.
Gjöld sem kaupandi þarf að standa straum af vegna kaupanna:
1. Stimpilgjald sýslumanns af kaupsamningi, fyrstu kaup (0,4%), almenn kaup (0,8%), lögaðilar (1,6%) af heildarfasteignamati eignar.
2. Þinglýsingargjald af kaupsamningi, veðskuldabréfi, mögulegu veðleyfi o.fl. - kr. 2.700 af hverju skjali.
3. Lántökugjald lánastofnunar er skv. verðskrá viðkomandi lánastofnunar. Nánari upplýsingar á t.d. heimasíðu lánastofnana.
4. Umsýslugjald til fasteignasölu skv. kauptilboði.
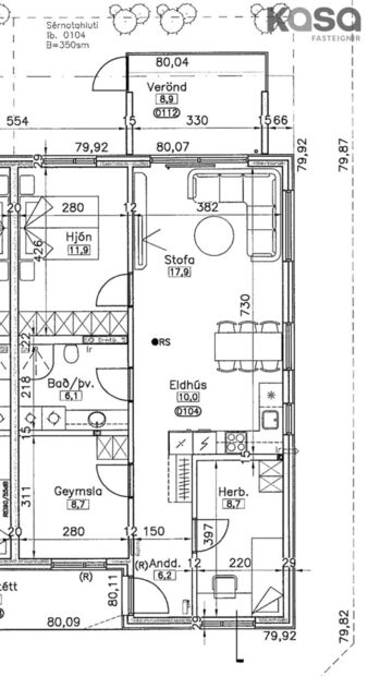
Halldóruhagi 4 íbúð 104 - Virkilega falleg og vel skipulögð 3-4 herbergja 81,5 fm endaíbúð á jarðhæð í nýlegu húsi í Hagahverfi.
Eignin skiptist í forstofu, stofu og eldhús í sama rými, baðherbergi með þvottaaðstöðu og þrjú svefnherbergi ( eitt skráð sem geymsla á teikningu ) ásamt verönd til suðurs.
Forstofa: Þar er parket á gólfum og opið fatahengi með lýsingu og skúffu.
Stofa: Er rúmgóð og björt með gráleitu parketi á gólfum, gengið er út á verönd frá stofu.
Eldhús: Þar er parket á gólfum, falleg innrétting með góðu skápa og skúffuplássi. Innbyggður ísskápur og uppþvottavél. Bakaraofn í vinnuhæð.
Baðherbergi: Er flísalagt á gólfum og hluta af veggjum, falleg innrétting með skápum og einnig er innrétting fyrir þvottavél og þurkkara. Upphengt salerni, sturta og handklæðaofn.
Svefnherbergi: Eru þrjú, hjónaherbergi er rúmgott með stórum skáp, tvöfaldur skápur er í hinum herbergjunum annað þeirra herbergja var teiknuð sem geymsla en hefur frá uppahafi verið svefnherbergi. Parket er á gólfum í svefnherbergjum.
Geymsla: sameiginleg geymsla er á hæðinni.
- Hiti í gólfum
- Innbyggð uppþvottvél og ísskápur.
Nánari upplýsingar í síma 461-2010 eða kasa@kasafasteignir.is
------------
Skoðunarskylda:
Í lögum um fasteignakaup nr. 40/2002 er kveðið á um ríka skoðunarskyldu kaupenda á fasteignum. Kasa fasteignir benda væntanlegum kaupendum á að kynna sér vel ástand fasteigna fyrir kauptilboðsgerð og leita til þar til bærra sérfræðinga um nánari skoðun ef þurfa þykir.
Forsendur söluyfirlits:
Söluyfirlit er samið af fasteignasala í samræmi við ákvæði laga nr. 70/2015. Þær upplýsingar sem fram koma í söluyfirliti þessu eru sóttar í opinberar skrár, til seljanda sjálfs og eftir atvikum til húsfélags. Seljandi veitir upplýsingar um eign í samræmi við upplýsingaskyldu laga um fasteignakaup nr. 40/2002. Fasteignasali sannreynir að þær upplýsingar séu réttar með sjónskoðun á eigninni. Fasteignasali getur ekki fullyrt um ástand og eiginleika þeirra hluta fasteigna sem ekki eru aðgengilegir og sjást ekki berum augum, t.d. lagnir, dren, skólp og þak.
Gjöld sem kaupandi þarf að standa straum af vegna kaupanna:
1. Stimpilgjald sýslumanns af kaupsamningi, fyrstu kaup (0,4%), almenn kaup (0,8%), lögaðilar (1,6%) af heildarfasteignamati eignar.
2. Þinglýsingargjald af kaupsamningi, veðskuldabréfi, mögulegu veðleyfi o.fl. - kr. 2.700 af hverju skjali.
3. Lántökugjald lánastofnunar er skv. verðskrá viðkomandi lánastofnunar. Nánari upplýsingar á t.d. heimasíðu lánastofnana.
4. Umsýslugjald til fasteignasölu skv. kauptilboði.
Ár
Fasteignamat
Kaupverð
Stærð
Fermetraverð
5. sep. 2019
15.250.000 kr.
33.800.000 kr.
81.5 m²
414.724 kr.
Byggt á upplýsingum úr Þjóðskrá Íslands frá 2006-2026