Löggiltir fasteignasalar innan Félags fasteignasala:
Hannes Steindórsson
Bogi Molby Pétursson
Guðrún Antonsdóttir
Heimir Hallgrímsson
Hrafnkell P. H. Pálmason
Viðar Marinósson
Elías Haraldsson
Kristján Þórir Hauksson
Albert Bjarni Úlfarsson
Ragnar Þorsteinsson
Þórey Ólafsdóttir
Andri Freyr Halldórsson
Upplýsingar
Byggt 2006
131 m²
4 herb.
1 baðherb.
3 svefnh.
Þvottahús
Sameiginl. inngangur
Bílastæði
Lyfta
Lýsing
******Íbúðin er seld******
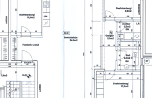
Lind fasteignasala / Ísak V. Jóhannsson, isak@fastlind.is, sími 822-5588 kynnir fallega og rúmgóða 4ra herbergja útsýnisíbúð á efstu hæð í lyftuhúsi við Marteinslaug 1. Íbúðin er 131 m², þar af 8,4 m² geymsla, og skiptist í forstofu, 3 svefnherbergi, baðherbergi, þvottahús og bjart alrými með eldhúsi, stofu og borðstofu.
Úr stofu/eldhúsi er útgengt á stórar suður svalir. Íbúðin er vel skipulögð með góðum innréttingum.
Eigninni fylgir einkastæði í lokaðri bílageymslu og lyfta er í húsinu. Hægt að tengja hleðslustöð í bílakjallara og tvær hleðslustöðvar á bílaplani. Afhending strax við kaupsamning.
Nánari lýsing:
Forstofa með flísum á gólfi og rúmgóðum fataskáp.
Eldhúsið er rúmgott með flísum á gólfi, fallegri innréttingu og góðri eldunareyju. Svalir til suðurs og góðir gluggar sem hleypa fallegri birtu inní rýmið.
Stofan og borðstofan eru með parketi á gólfi og er í opnu rými með eldhúsi. Gólfsíður gluggi með óviðjafnanlegu útsýni til norðurs.
Þrjú svefnherbergi eru í íbúðinni, eitt þeirra er við hlið eldhúss, með skápum og parketi á gólfi.
Á svefnherbergisgangi er hjónaherbergið, rúmgott með góðum skápum, parketi á gólfi og fallegu útsýni.
Baðherbergið er með góðri sturtu, innréttingu, flísum á gólfi og veggjum.
þvottahús með innréttingu, góðu skápaplássi og vaski.
Þriðja svefnherbergið er með parketi á gólfum og skápum, rúmgott eins og öll svefnherbergi íbúðarinnar.
Sér geymsla og sameiginleg vagna- og hjólageymsla er á jarðhæð hússins.
Bílastæði er í lokuðu bílastæðahúsi.
Staðsett á vinsælum og fjölskylduvænum stað í Grafarholti, með stuttu færi í skóla, leikskóla, sund, útivist og þjónustu.
Íbúðin er í góðu fjölbýlishúsi sem hefur verið vel viðhaldið frá byggingu þess. Húsið er klætt og því viðhaldslétt. Einungis eru sex íbúðir í húsinu (stigagangi)
Virkilega falleg, vel skipulögð og góð eign í þessu vinsæla hverfi - Sjón er sögu ríkari!
Allar nánari upplýsingar og ráðgjöf um eignina veita Ísak V. Jóhannsson og Viðar Marinósson sími: 822-5588 isak@fastlind.is
Lind fasteignasala / Ísak V. Jóhannsson, isak@fastlind.is, sími 822-5588 kynnir fallega og rúmgóða 4ra herbergja útsýnisíbúð á efstu hæð í lyftuhúsi við Marteinslaug 1. Íbúðin er 131 m², þar af 8,4 m² geymsla, og skiptist í forstofu, 3 svefnherbergi, baðherbergi, þvottahús og bjart alrými með eldhúsi, stofu og borðstofu.
Úr stofu/eldhúsi er útgengt á stórar suður svalir. Íbúðin er vel skipulögð með góðum innréttingum.
Eigninni fylgir einkastæði í lokaðri bílageymslu og lyfta er í húsinu. Hægt að tengja hleðslustöð í bílakjallara og tvær hleðslustöðvar á bílaplani. Afhending strax við kaupsamning.
Nánari lýsing:
Forstofa með flísum á gólfi og rúmgóðum fataskáp.
Eldhúsið er rúmgott með flísum á gólfi, fallegri innréttingu og góðri eldunareyju. Svalir til suðurs og góðir gluggar sem hleypa fallegri birtu inní rýmið.
Stofan og borðstofan eru með parketi á gólfi og er í opnu rými með eldhúsi. Gólfsíður gluggi með óviðjafnanlegu útsýni til norðurs.
Þrjú svefnherbergi eru í íbúðinni, eitt þeirra er við hlið eldhúss, með skápum og parketi á gólfi.
Á svefnherbergisgangi er hjónaherbergið, rúmgott með góðum skápum, parketi á gólfi og fallegu útsýni.
Baðherbergið er með góðri sturtu, innréttingu, flísum á gólfi og veggjum.
þvottahús með innréttingu, góðu skápaplássi og vaski.
Þriðja svefnherbergið er með parketi á gólfum og skápum, rúmgott eins og öll svefnherbergi íbúðarinnar.
Sér geymsla og sameiginleg vagna- og hjólageymsla er á jarðhæð hússins.
Bílastæði er í lokuðu bílastæðahúsi.
Staðsett á vinsælum og fjölskylduvænum stað í Grafarholti, með stuttu færi í skóla, leikskóla, sund, útivist og þjónustu.
Íbúðin er í góðu fjölbýlishúsi sem hefur verið vel viðhaldið frá byggingu þess. Húsið er klætt og því viðhaldslétt. Einungis eru sex íbúðir í húsinu (stigagangi)
Virkilega falleg, vel skipulögð og góð eign í þessu vinsæla hverfi - Sjón er sögu ríkari!
Allar nánari upplýsingar og ráðgjöf um eignina veita Ísak V. Jóhannsson og Viðar Marinósson sími: 822-5588 isak@fastlind.is