Löggiltir fasteignasalar innan Félags fasteignasala:
Knútur Bjarnason
Rúnar Þór Árnason
Gunnar Sv. Friðriksson
Hólmar Björn Sigþórsson
Linda Björk Ingvadóttir
Kristján Þór Sveinsson
María Steinunn Jóhannesdóttir
Ragnheiður Árnadóttir
Vista
fjölbýlishús

Andrésbrunnur 14

113 Reykjavík

86.900.000 kr.

784.296 þ.kr./m2
Fasteignanúmer

F2263881

Fasteignamat

77.800.000 kr.

Brunabótamat

62.860.000 kr.

Áhvílandi

0 kr.

Arion banki – Reikna lán
Upplýsingar
Verðsaga
svg
Byggt 2003
svg
110,8 m²
svg
4 herb.
svg
1 baðherb.
svg
3 svefnh.
svg
Þvottahús
svg
Sameiginl. inngangur
svg
Hjólastólaaðgengi
svg
Bílastæði
svg
Lyfta

Lýsing

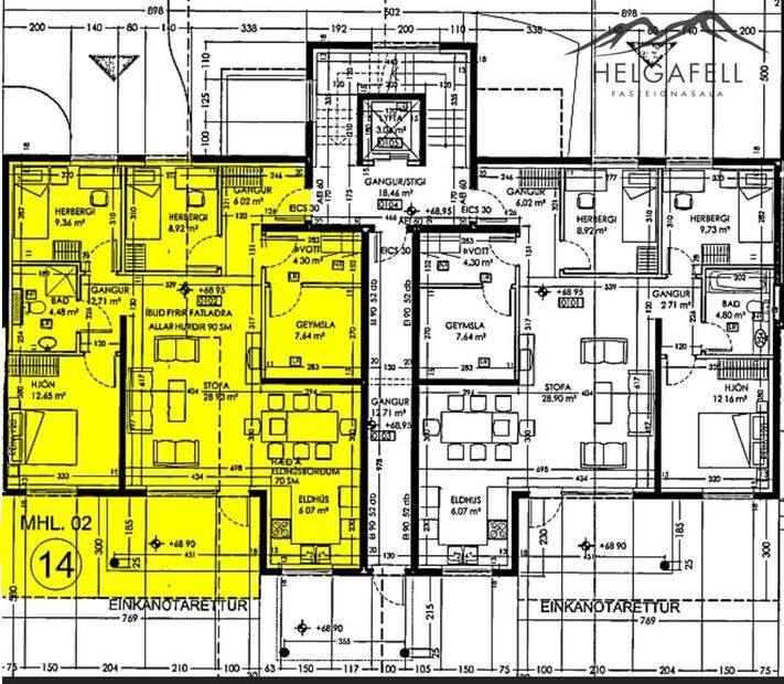
Andrésbrunnur 14 í Reykjavík. Fjögurra herbergja íbúð á fyrstu hæð með stórum suður-pall og stæði í bílageymslu

Íbúðin skiptist í þrjú svefnherbergi, baðherbergi, þvottahús, geymslu innan íbúðar sem búið er að breyta í herbergi, eldhús, stofu og borðstofu.

Forstofa: Eikarparket á gólfi.  Skápur og fatahengi.
Þvottahús: Inn af forstofu er flísalagt þvottahús með hillum og innréttingu ásamt góðri borðplötu.
Geymsla:  Inn af þvottahúsi er flísalögð geymsla sem hefur núna verið breytt í annað herbergi.
Eldhús:  Flísar á gólfi, falleg svört og hvít innrétting, flísar á milli efri og neðri skápa.
Stofa:  Eikarparket á gólfi.  Útgengt út á stóran afgirtan suðurpall úr stofunni.
Baðherbergi: Flísalagt í hólf og gólf.  Upphengt salerni, baðkar með sturtuaðstöðu.
Bílageymsla:  Innangengt er í góða þriggja bíla bílageymslu.
Hjónaherbergi:  Eikarparket á gólfi og góður skápur.
Tvö barnaherbergi: Eikarparket á gólfi með skápum.

Á jarðhæð er sameiginleg vagna- og hjólageymsla og bílastæði í lokaðri þriggja bíla bílageymslu með þvottaaðstöðu.

Íbúðin er útbúin fyrir fatlaða og er bílastæðið aðeins stærra en önnur stæði ásamt því að allar hurðir eru 90cm.

Nýlega er búið að setja upp varmaskiptir í húsinu. 
Húsið var nýlega sílanborið, skipt um glugga þar sem þurfti á norðurhlið.  Búið að yfirfara þak nýlega.

Samantekt: fjögurra herbergja íbúð með stórum suður-pall á vinsælum og barnvænum stað í Grafarholti, stutt í helstu þjónustu s.s. skóla, leikskóla, íþróttir og verslanir. 


Fyrir nánari upplýsingar hafið samband við Helgafell fasteignasölu í síma 566 0000 eða hafið samband við:
Rúnar Þór Árnason lgf.,  Sími 775 5805 / runar@helgafellfasteignasala.is

----------------------------------------------------------
Heimasíða Helgafells fasteignasölu
Facebook síða Helgafells

- Hafðu samband og við gerum söluverðmat á eign þinni, þér að kostnaðarlausu -

Gjöld sem kaupandi þarf að standa straum af vegna kaupa á fasteign:

1. Stimpilgjald af kaupsamningi - 0,8% af fasteignamati fyrir einstaklinga (0,4% fyrir fyrstu kaupendur) og 1,6% fyrir lögaðila.
2. Þinglýsingargjald af kaupsamningi, veðskuldabréfi, mögulegu veðleyfi o.fl. - 3.800 kr. af hverju skjali.
3. Lántökugjald lánastofnunar - almennt í kringum 50þ., oft lægra eða ekkert lántökugjald fyrir fyrstu kaup. Nánari upplýsingar á heimasíðum lánastofnana.
4. Þjónustusamningur milli kaupanda og fasteignasölu - Kr.  92.380,- m/vsk.

Helgafell fasteignasala bendir kaupendum á ríka skoðunarskyldu sem kveðið er á í lögum um fasteignakaup nr.40/2002. Skorað er á kaupendur að kynna sér vandlega ástand fasteigna og nýta til þess aðstoð sérfræðinga.  Sömuleiðis er bent á upplýsingaskyldu seljanda samanber 26.gr. Laga nr.40/2002 um fasteignakaup og 25.gr. laga nr.26/1994 um fjöleignarhús. Seljanda er bent á að kynna sér tilvitnaðar lagagreinar.

img
Rúnar Þór Árnason
Lögg.fasteignasali innan félags fasteignasala
Helgafell fasteignasala ehf.
Stórhöfði 33, 2. hæð, 110 Reykjavík
Helgafell fasteignasala ehf.

Helgafell fasteignasala ehf.

Stórhöfði 33, 2. hæð, 110 Reykjavík
img

Rúnar Þór Árnason

Stórhöfði 33, 2. hæð, 110 Reykjavík
Ár
Fasteignamat
Kaupverð
Stærð
Fermetraverð
15. des. 2016
33.400.000 kr.
41.500.000 kr.
110.8 m²
374.549 kr.
Byggt á upplýsingum úr Þjóðskrá Íslands frá 2006-2026
Helgafell fasteignasala ehf.

Helgafell fasteignasala ehf.

Stórhöfði 33, 2. hæð, 110 Reykjavík

Rúnar Þór Árnason

Stórhöfði 33, 2. hæð, 110 Reykjavík