Upplýsingar
Verðsaga
Byggt 2018
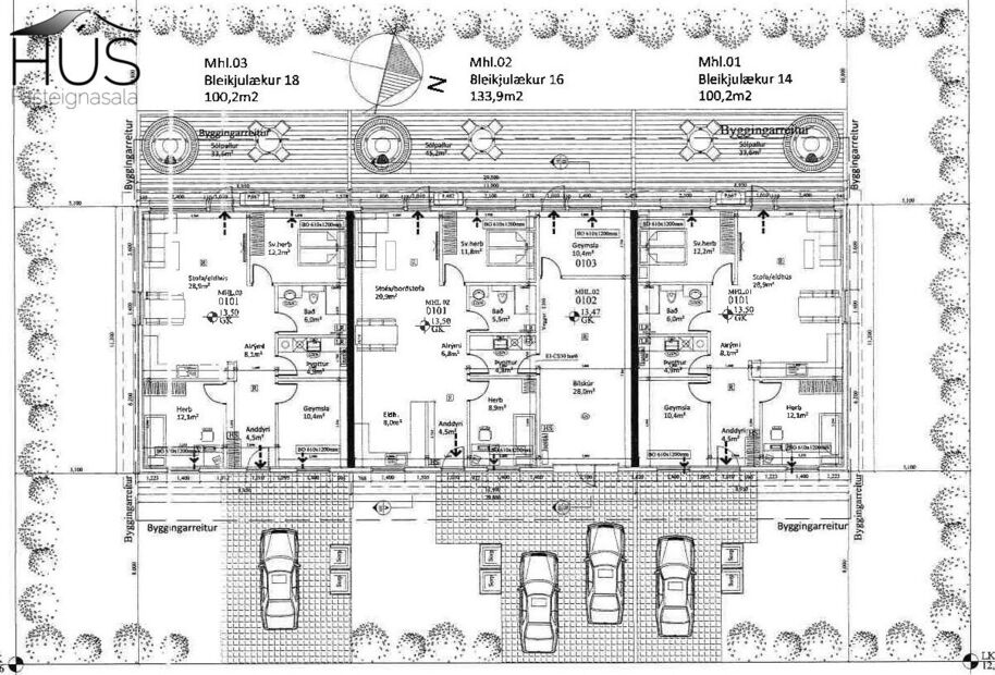
100,2 m²
4 herb.
1 baðherb.
3 svefnh.
Þvottahús
Sérinngangur
Lýsing
Hús fasteignasala og Snorri Sigurfinnsson löggiltur fasteignasali kynna í einkasölu: Bleikjulækur 14. Gott endaraðhús, rúmir 100 fm. með þremur svefnherbergjum og aflokuðum góðum sólpalli.
Húsið er timburhús með standandi báruklæðningu, ál/tré gluggar. Byggt 2018.
Möl í innkeyrslu, stór aflokaður sólpallur og grasflöt. Bílahleðslustöð á sorptunnuskýli.
Nánari lýsing: Forstofa með fataskáp, hol/gangur. Eldhús og stofa í opnu rými, rúmgóð hvít eldhúsinnrétting. Innbyggð uppþvottavél. Hurð úr stofu út á sólpall. Þrjú góð svefnherbergi, tvö með fataskápum (eitt herbergjanna skráð sem geymsla á teikningu) Baðherbergi með innréttingu og sturtuklefa. Þvottahús með vinnuborði og hillum. Á forstofu, baðherbergi og þvottahúsi er flísaparket. Á öðrum gólfum er vandað harðparket. Hiti í gólfum með stýringum. Innbyggð led ljós í loftum með dimmerum. Í holi er fellistigi upp á stórt geymsluloft.
Nánari upplýsingar veitir Snorri Sigurfinnsson, löggiltur fasteignasali s. 8648090 eða snorri@husfasteign.is
Bókið einkaskoðun.
Gjöld sem kaupandi þarf að standa straum að vegna kaupanna.
1. Stimpilgjöld af kaupsamningi - 0,8 % af heildarfasteignamati og 1,6% fyrir lögaðila.
2. Þinglýsingargjald af kaupsamningi, veðskuldabréfi, mögulegu veðleyfi o.fl. kr. 3800 af hverju skjali.
3. Lántökugjald lánastofnunnar. Nánari upplýsingar t.d. á heimasíðum lánastofnanna.
4. Umsýslugjald til fasteignasölu
Skoðunarskylda: Í lögum um fasteignakaup nr. 40/2002 er kveðið á um ríka skoðunarskyldu kaupenda á fasteignum. Vill HÚS fasteignasala því skora á væntanlega kaupendur að kynna sér vel ástand fasteigna fyrir kauptilboðsgerð og leita til þar til bærra sérfræðinga um nánari skoðun.
Söluyfirlit er samið af fasteignasala í samræmi við ákvæði laga nr. 70/2015. Þær upplýsingar sem fram koma í söluyfirliti þessu eru sóttar í opinberar skrár, til seljanda sjálfs og eftir atvikum til húsfélags. Seljandi veitir upplýsingar um eign í samræmi við upplýsingaskyldu laga um fasteignakaup nr. 40/2002. Fasteignasali sannreynir að þær upplýsingar séu réttar með sjónskoðun á eigninni.
Fasteignasali getur ekki fullyrt um ástand og eiginleika þeirra hluta fasteigna sem ekki eru aðgengilegir og sjást ekki berum augum, t.d. lagnir, dren, skólp og þak.
Húsið er timburhús með standandi báruklæðningu, ál/tré gluggar. Byggt 2018.
Möl í innkeyrslu, stór aflokaður sólpallur og grasflöt. Bílahleðslustöð á sorptunnuskýli.
Nánari lýsing: Forstofa með fataskáp, hol/gangur. Eldhús og stofa í opnu rými, rúmgóð hvít eldhúsinnrétting. Innbyggð uppþvottavél. Hurð úr stofu út á sólpall. Þrjú góð svefnherbergi, tvö með fataskápum (eitt herbergjanna skráð sem geymsla á teikningu) Baðherbergi með innréttingu og sturtuklefa. Þvottahús með vinnuborði og hillum. Á forstofu, baðherbergi og þvottahúsi er flísaparket. Á öðrum gólfum er vandað harðparket. Hiti í gólfum með stýringum. Innbyggð led ljós í loftum með dimmerum. Í holi er fellistigi upp á stórt geymsluloft.
Nánari upplýsingar veitir Snorri Sigurfinnsson, löggiltur fasteignasali s. 8648090 eða snorri@husfasteign.is
Bókið einkaskoðun.
Gjöld sem kaupandi þarf að standa straum að vegna kaupanna.
1. Stimpilgjöld af kaupsamningi - 0,8 % af heildarfasteignamati og 1,6% fyrir lögaðila.
2. Þinglýsingargjald af kaupsamningi, veðskuldabréfi, mögulegu veðleyfi o.fl. kr. 3800 af hverju skjali.
3. Lántökugjald lánastofnunnar. Nánari upplýsingar t.d. á heimasíðum lánastofnanna.
4. Umsýslugjald til fasteignasölu
Skoðunarskylda: Í lögum um fasteignakaup nr. 40/2002 er kveðið á um ríka skoðunarskyldu kaupenda á fasteignum. Vill HÚS fasteignasala því skora á væntanlega kaupendur að kynna sér vel ástand fasteigna fyrir kauptilboðsgerð og leita til þar til bærra sérfræðinga um nánari skoðun.
Söluyfirlit er samið af fasteignasala í samræmi við ákvæði laga nr. 70/2015. Þær upplýsingar sem fram koma í söluyfirliti þessu eru sóttar í opinberar skrár, til seljanda sjálfs og eftir atvikum til húsfélags. Seljandi veitir upplýsingar um eign í samræmi við upplýsingaskyldu laga um fasteignakaup nr. 40/2002. Fasteignasali sannreynir að þær upplýsingar séu réttar með sjónskoðun á eigninni.
Fasteignasali getur ekki fullyrt um ástand og eiginleika þeirra hluta fasteigna sem ekki eru aðgengilegir og sjást ekki berum augum, t.d. lagnir, dren, skólp og þak.
Ár
Fasteignamat
Kaupverð
Stærð
Fermetraverð
19. sep. 2017
2.850.000 kr.
19.000.000 kr.
100.2 m²
189.621 kr.
Byggt á upplýsingum úr Þjóðskrá Íslands frá 2006-2026