Löggiltir fasteignasalar innan Félags fasteignasala:
Heiðrekur Þór Guðmundsson
Elísabet Kvaran
Karólína Íris Jónsdóttir
Vista
fjölbýlishús

Núpalind 6

201 Kópavogur

73.900.000 kr.

747.219 þ.kr./m2
Fasteignanúmer

F2236912

Fasteignamat

70.950.000 kr.

Brunabótamat

50.800.000 kr.

Áhvílandi

0 kr.

Arion banki – Reikna lán
Upplýsingar
Verðsaga
svg
Byggt 2000
svg
98,9 m²
svg
3 herb.
svg
1 baðherb.
svg
2 svefnh.
svg
Þvottahús
svg
Útsýni
svg
Sameiginl. inngangur
svg
Lyfta
svg
Svalir

Lýsing

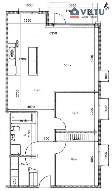
Viltu fasteignir kynna rúmgóða og vel skipulagða 3ja herbergja íbúð á 4. hæð í góðu lyftuhúsi í Núpalind 6. Stutt í bæði skóla og leikskóla auk allrar helstu þjónustu. Miðsvæðis á höfuðborgarsvæðinu. Gott útsýni og yfirbyggðar svalir.

Samkvæmt Þjóðskrá Íslands er eignin skráð 98,9fm og er geymsla þar af 5,3fm.

Fáðu nánari upplýsingar og gerðu tilboð á sölusíðu eignarinnar.

Allar nánari upplýsingar veita:

Elísabet Kvaran löggiltur fasteignasali í síma 781-2100 elisabet@viltu.is

Karólína Íris löggiltur fasteignasali í síma 772-6939 karolina@viltu.is

Nánari lýsing:
Forstofa/gangur með parketi á gólfi og góðum skáp.
Stofa/borðstofa er rúmgóð með parket á gólfi. Útgengt á yfirbyggðar svalir.
Eldhús með snyrtilegri innréttingu og góðum borðkrók,opið er inn í stofuna. Parket er á gólfi.
Hjónaherbergi rúmgott með innbyggðum fataskáp og parket á gólfi.
Svefnherbergi II er rúmgott með parketi á gólfi.
Baðherbergi er rúmgott með bæði sturtu og baðkari, góðri innréttingu og flísalagt í hólf og gólf.
Þvottahús/geymsla er innan íbúðar, vel skipulagt með flísum á gólfi og fallegri hvítri innréttingu og vaski.

Geymsla íbúðar er í sameign á jarðhæð.
Sameiginleg hjóla- og vagnageymsla

Hér er listi yfir endurbætur:

2022
Baðherbergi: Ný blöndunartæki í sturtu.

2023
Baðherbergi: Ofn fjarlægður af vegg. Handklæðaofn settur upp.
Þvottahús: Veggir og loft máluð.
Lagnir í vegg færðar til og innrétting sett upp.
2024
Gangur: Veggir og loft máluð.
Flísar fjarlægðar af gólfi og parketlagt með parketinu úr svefnherbergjunum.
Hurðar og karmar málað hvítt og skipt um hurðahúna.
Svefnherbergi: Veggir og loft máluð.
Nýtt parket lagt á gólfin.

Fyrirvarar:

Í lögum um fasteignakaup nr. 40/2002 er kveðið á um ríka skoðunarskyldu kaupenda á fasteignum. Vill seljandi því skora á væntanlega kaupendur að kynna sér vel ástand fasteignarinnar fyrir kauptilboðsgerð og leita til þar til bærra sérfræðinga um nánari skoðun.

Þær upplýsingar sem fram koma í söluyfirliti þessu eru sóttar í opinberar skrár, til seljanda sjálfs og eftir atvikum til húsfélags. Seljandi veitir upplýsingar um eign í samræmi við upplýsingaskyldu laga um fasteignakaup nr. 40/2002.

img
Karólína Íris Jónsdóttir
Lögg.fasteignasali innan félags fasteignasala
Viltu fasteignir
Viltu fasteignir

Viltu fasteignir

phone
img

Karólína Íris Jónsdóttir

Ár
Fasteignamat
Kaupverð
Stærð
Fermetraverð
26. júl. 2021
46.300.000 kr.
52.900.000 kr.
98.9 m²
534.884 kr.
Byggt á upplýsingum úr Þjóðskrá Íslands frá 2006-2025
Viltu fasteignir

Viltu fasteignir

phone

Karólína Íris Jónsdóttir