Löggiltir fasteignasalar innan Félags fasteignasala:
Hannes Steindórsson
Bogi Molby Pétursson
Guðrún Antonsdóttir
Heimir Hallgrímsson
Hrafnkell P. H. Pálmason
Viðar Marinósson
Elías Haraldsson
Kristján Þórir Hauksson
Albert Bjarni Úlfarsson
Ragnar Þorsteinsson
Þórey Ólafsdóttir
Andri Freyr Halldórsson
Upplýsingar
Verðsaga
Byggt 1934
79,6 m²
4 herb.
1 baðherb.
3 svefnh.
Þvottahús
Sameiginl. inngangur
Lýsing
LIND Fasteignasala og Guðmundur Hallgrímsson Lgfs kynna fallega risíbúð við Barónsstíg 39.
Eignin er mjög vel staðsett og með frábæru útsýni yfir húsþök borgarinnar og til fjalla.
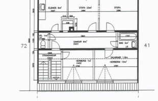
Íbúðin er 3–4 herbergja, að hluta undir súð, og skiptist í:
- Eldhús með klassískri innréttingu og er opið að samliggjandi stofu og borðstofu.
(Búið er að opna á milli eldhúss og stofanna tveggja, sem gefur rýmið bjartara og opnara yfirbragð.)
- Tvö svefnherbergi undir súð.
- Baðherbergi með vaski og hornbaðkari.
- Aðskilið salerni með vaski.
Harð og plastparket er á gólfum nema á baðherbergjum, þar sem eru flísar.
Tvær geymslur fylgja eigninni: önnur rúmgóð í kjallara(11,4) og hin lítil útigeymsla (3fm).
Að auki er talsvert geymslu- og skápapláss undir súð í svefnherbergjunum.
Möguleiki er á að bæta við svefnherbergi III innaf stofu.
ATH að hluti myndana er tölvuunninn meðal annars er búið að bæta inn húsgögnum.
Nánari lýsing:
Gangur: Liggur eftir miðri íbúðinni og er með fatahengi.
Stofur: Rúmgóð stofa og borðstofa eru samliggjandi.
Eldhús: Upprunaleg innrétting sem hefur verið endurnýjuð og máluð. Flísar eru milli borðplötu og efri skápa. Lagt er fyrir uppþvottavél.
Svefnherbergi: Tvö, bæði undir súð. Það stærra er með töluverðu skápaplássi, hitt með hillum og sérinngangi.
Salerni: Með vask og skáp. Flísalagt gólf og upp á miðja veggi.
Baðherbergi: Með stóru og góðu hornbaðkari, ásamt sturtuaðstöðu, litlum vaski og skáp. Flísalagt gólf og veggir.
Geymsla: Í kjallara (sameign) er rúmgóð geymsla (11,4fm)
Í sameign er þvottahús og fyrir aftan húsið er lítill garður
Raflagnir voru endurnýjaðar árið 2002 og vatnslagnir að hluta 2006. Bað og salerni voru endurnýjuð um svipað leyti.
Ath að íbúðin er með breyttu innra skipulagi miðað við samþykktar teikningar þar sem opnað hefur verið á milli rýma.
Íbúðin er mjög vel staðsett, örstutt er í Sundhöllina, leikskóla og grunnskóla.
Einnig eru Tækniskólinn, Landspítalinn, Hlemmur, BSÍ og miðbærinn allur í göngufæri.
Helstu endurbætur síðustu ára:
2002 Raflagnir íbúðar voru endurnýjaðar að hluta.
2006 Neyslu- og ofnalagnir voru endurnýjaðar sunnanmegin í húsinu.
2007 Skipt var um hurð og glugga í kjallara austan megin.
2016 Skipt var um ofna í stofu árið. Parket lagt í eldhúsi, stofu og gangi.
Veggir og gólf í kjallara var málað árið 2020, einnig gólfið í geymslu sem tilheyrir íbúðinni.
2021 Skipt var um járn á þaki og tréverk yfirfarið. Gluggar eru upprunalegir en botnstykki voru yfirfarin og skipt út þar sem þörf var á.
Lítils háttar raki er í vegg undir eldhúsglugga, hefur ekki verið endursparslað eftir yfirferð á botnstykkjum.
Allar frekari upplýsingar um eignina veitir
Guðmundur Hallgrímsson Löggiltur fasteignasali í síma 898-5115 / Gudmundur@fastlind.is
-Vegna mikillar eftirspurnar vantar allar tegundir eigna á skrá.
-Hafðu samband og við verðmetum eignina þína þér að kostnaðarlausu.
Gjöld sem kaupandi þarf að standa straum af vegna kaupanna:
1. Stimpilgjald af kaupsamningi - 0,4% (fyrstu kaup), 0,8%(einstaklingar) 1.6% (lögaðilar) af heildarfasteignamati.
2. Lántökugjald af veðskuldabréfi mishátt milli lánastofnuna. Nánari upplýsingar á t.d. heimasíðu lánastofnana.
3. Þinglýsingargjald af kaupsamningi, veðskuldabréfi, mögulegu veðleyfi o.fl. - kr. 2.700 af hverju skjali.
4. Umsýslugjald til fasteignasölu 74.900,
Eignin er mjög vel staðsett og með frábæru útsýni yfir húsþök borgarinnar og til fjalla.
Íbúðin er 3–4 herbergja, að hluta undir súð, og skiptist í:
- Eldhús með klassískri innréttingu og er opið að samliggjandi stofu og borðstofu.
(Búið er að opna á milli eldhúss og stofanna tveggja, sem gefur rýmið bjartara og opnara yfirbragð.)
- Tvö svefnherbergi undir súð.
- Baðherbergi með vaski og hornbaðkari.
- Aðskilið salerni með vaski.
Harð og plastparket er á gólfum nema á baðherbergjum, þar sem eru flísar.
Tvær geymslur fylgja eigninni: önnur rúmgóð í kjallara(11,4) og hin lítil útigeymsla (3fm).
Að auki er talsvert geymslu- og skápapláss undir súð í svefnherbergjunum.
Möguleiki er á að bæta við svefnherbergi III innaf stofu.
ATH að hluti myndana er tölvuunninn meðal annars er búið að bæta inn húsgögnum.
Nánari lýsing:
Gangur: Liggur eftir miðri íbúðinni og er með fatahengi.
Stofur: Rúmgóð stofa og borðstofa eru samliggjandi.
Eldhús: Upprunaleg innrétting sem hefur verið endurnýjuð og máluð. Flísar eru milli borðplötu og efri skápa. Lagt er fyrir uppþvottavél.
Svefnherbergi: Tvö, bæði undir súð. Það stærra er með töluverðu skápaplássi, hitt með hillum og sérinngangi.
Salerni: Með vask og skáp. Flísalagt gólf og upp á miðja veggi.
Baðherbergi: Með stóru og góðu hornbaðkari, ásamt sturtuaðstöðu, litlum vaski og skáp. Flísalagt gólf og veggir.
Geymsla: Í kjallara (sameign) er rúmgóð geymsla (11,4fm)
Í sameign er þvottahús og fyrir aftan húsið er lítill garður
Raflagnir voru endurnýjaðar árið 2002 og vatnslagnir að hluta 2006. Bað og salerni voru endurnýjuð um svipað leyti.
Ath að íbúðin er með breyttu innra skipulagi miðað við samþykktar teikningar þar sem opnað hefur verið á milli rýma.
Íbúðin er mjög vel staðsett, örstutt er í Sundhöllina, leikskóla og grunnskóla.
Einnig eru Tækniskólinn, Landspítalinn, Hlemmur, BSÍ og miðbærinn allur í göngufæri.
Helstu endurbætur síðustu ára:
2002 Raflagnir íbúðar voru endurnýjaðar að hluta.
2006 Neyslu- og ofnalagnir voru endurnýjaðar sunnanmegin í húsinu.
2007 Skipt var um hurð og glugga í kjallara austan megin.
2016 Skipt var um ofna í stofu árið. Parket lagt í eldhúsi, stofu og gangi.
Veggir og gólf í kjallara var málað árið 2020, einnig gólfið í geymslu sem tilheyrir íbúðinni.
2021 Skipt var um járn á þaki og tréverk yfirfarið. Gluggar eru upprunalegir en botnstykki voru yfirfarin og skipt út þar sem þörf var á.
Lítils háttar raki er í vegg undir eldhúsglugga, hefur ekki verið endursparslað eftir yfirferð á botnstykkjum.
Allar frekari upplýsingar um eignina veitir
Guðmundur Hallgrímsson Löggiltur fasteignasali í síma 898-5115 / Gudmundur@fastlind.is
-Vegna mikillar eftirspurnar vantar allar tegundir eigna á skrá.
-Hafðu samband og við verðmetum eignina þína þér að kostnaðarlausu.
Gjöld sem kaupandi þarf að standa straum af vegna kaupanna:
1. Stimpilgjald af kaupsamningi - 0,4% (fyrstu kaup), 0,8%(einstaklingar) 1.6% (lögaðilar) af heildarfasteignamati.
2. Lántökugjald af veðskuldabréfi mishátt milli lánastofnuna. Nánari upplýsingar á t.d. heimasíðu lánastofnana.
3. Þinglýsingargjald af kaupsamningi, veðskuldabréfi, mögulegu veðleyfi o.fl. - kr. 2.700 af hverju skjali.
4. Umsýslugjald til fasteignasölu 74.900,
Ár
Fasteignamat
Kaupverð
Stærð
Fermetraverð
19. júl. 2016
25.150.000 kr.
32.000.000 kr.
79.6 m²
402.010 kr.
Byggt á upplýsingum úr Þjóðskrá Íslands frá 2006-2025