Löggiltir fasteignasalar innan Félags fasteignasala:
Hannes Steindórsson
Bogi Molby Pétursson
Guðrún Antonsdóttir
Heimir Hallgrímsson
Hrafnkell P. H. Pálmason
Viðar Marinósson
Elías Haraldsson
Kristján Þórir Hauksson
Albert Bjarni Úlfarsson
Ragnar Þorsteinsson
Þórey Ólafsdóttir
Andri Freyr Halldórsson
Upplýsingar
Verðsaga
Byggt 1996
89 m²
3 herb.
2 svefnh.
Útsýni
Sérinngangur
Lýsing
Páll Konráð & LIND fasteignasala kynna í einkasölu: 3ja herbergja endaíbúð á jarðhæð með sér inngangi og stórum sérafnotareit á baklóð við Berjarima 32 í Reykjavík.
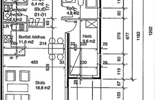
Eignin er skráð 89 m2, íbúð 81,9 m2 og geymsla 7,1m2. Eignin skiptist í forstofu, stofu, eldhús, tvö svefnherbergi, baðherbergi og geymslu/þvottahús.
Fasteignamat fyrir árið 2026 verður: 64.550.000
Nánari lýsing:
Komið er inn í forstofu með flísum á gólfi. Úr forstofu er komið inn í hol með parketi á gólfi.
Á hægri hönd er hjónaherbergi með fataskáp og harðparketi á gólfi. Þar við hlið er þvottahús með vinnuborði og hillum, dúkur á gólfi.
Á vinstri hönd úr holi er baðherbergi sem er nýuppgert með Glæsilegri innréttingu og walk-in sturtu. Nýjar flísar frá ÁLFABORG gólfi og veggjum. Ný blöndunartæki frá ÁLFABORG, handklæðaogn og gluggi er á baðherbergi.
Við hlið baðherbergis er svefnherbergi með harðparket á gólfi. Úr holi er komið inn í eldhús með U-laga innréttingu og borðkrók, eldavél, stæði fyrir ísskáp og uppþvottavél. Parket á gólfi,.
Úr parketlagðri stofu er gengið út á hellulagða verönd.
Geymsla í sameign.
Nánari upplýsingar gefur Páll Konráð, Löggiltur fasteignasali, S:820-9322, pall@fastlind.is
Sameiginleg stæði eru á lóð og eru tvö stæði ætluð fyrir hleðslu rafmagnsbíla. Í næsta nágrenni er m.a. skóli, leikskóli, golfvöllur, kvikmyndahús, sundlaug, skíðabrekka, skemmtilegar gönguleiðir, Spöngin, verslun og ýmis þjónusta.
Allir kaupendur okkar fá Vildarkort Lindar. Með því að framvísa kortinu færð þú 30% afslátt hjá 10 samstarfsaðilum: Húsgagnahöllin, S. Helgason, Flugger litir, Húsasmiðjan, Z brautir og gluggatjöld, Vídd, Parki, Betra bak, Dorma og Vodafone.
Í lögum um fasteignakaup nr. 40/2002 er kveðið á um ríka skoðunarskyldu kaupenda á fasteignum. Vill Lind fasteignasala því skora á væntanlega kaupendur að kynna sér vel ástand fasteigna fyrir kauptilboðsgerð og leita til þar til bærra sérfræðinga um nánari skoðun.
Gjöld sem kaupandi þarf að standa straum af vegna kaupanna:
1. Stimpilgjald af kaupsamningi - 0,8% af heildarfasteignamati, lögaðili greiðir 1,6%
2. Þinglýsingargjald af kaupsamningi, veðskuldabréfi, mögulegu veðleyfi o.fl. - kr. 2.700 af hverju skjali.
3. Lántökugjald lánastofnunar. Nánari upplýsingar á t.d. heimasíðu lánastofnana.
4. Umsýslugjald til fasteignasölu skv. gjaldskrá.
Eignin er skráð 89 m2, íbúð 81,9 m2 og geymsla 7,1m2. Eignin skiptist í forstofu, stofu, eldhús, tvö svefnherbergi, baðherbergi og geymslu/þvottahús.
Fasteignamat fyrir árið 2026 verður: 64.550.000
Nánari lýsing:
Komið er inn í forstofu með flísum á gólfi. Úr forstofu er komið inn í hol með parketi á gólfi.
Á hægri hönd er hjónaherbergi með fataskáp og harðparketi á gólfi. Þar við hlið er þvottahús með vinnuborði og hillum, dúkur á gólfi.
Á vinstri hönd úr holi er baðherbergi sem er nýuppgert með Glæsilegri innréttingu og walk-in sturtu. Nýjar flísar frá ÁLFABORG gólfi og veggjum. Ný blöndunartæki frá ÁLFABORG, handklæðaogn og gluggi er á baðherbergi.
Við hlið baðherbergis er svefnherbergi með harðparket á gólfi. Úr holi er komið inn í eldhús með U-laga innréttingu og borðkrók, eldavél, stæði fyrir ísskáp og uppþvottavél. Parket á gólfi,.
Úr parketlagðri stofu er gengið út á hellulagða verönd.
Geymsla í sameign.
Nánari upplýsingar gefur Páll Konráð, Löggiltur fasteignasali, S:820-9322, pall@fastlind.is
Sameiginleg stæði eru á lóð og eru tvö stæði ætluð fyrir hleðslu rafmagnsbíla. Í næsta nágrenni er m.a. skóli, leikskóli, golfvöllur, kvikmyndahús, sundlaug, skíðabrekka, skemmtilegar gönguleiðir, Spöngin, verslun og ýmis þjónusta.
Allir kaupendur okkar fá Vildarkort Lindar. Með því að framvísa kortinu færð þú 30% afslátt hjá 10 samstarfsaðilum: Húsgagnahöllin, S. Helgason, Flugger litir, Húsasmiðjan, Z brautir og gluggatjöld, Vídd, Parki, Betra bak, Dorma og Vodafone.
Í lögum um fasteignakaup nr. 40/2002 er kveðið á um ríka skoðunarskyldu kaupenda á fasteignum. Vill Lind fasteignasala því skora á væntanlega kaupendur að kynna sér vel ástand fasteigna fyrir kauptilboðsgerð og leita til þar til bærra sérfræðinga um nánari skoðun.
Gjöld sem kaupandi þarf að standa straum af vegna kaupanna:
1. Stimpilgjald af kaupsamningi - 0,8% af heildarfasteignamati, lögaðili greiðir 1,6%
2. Þinglýsingargjald af kaupsamningi, veðskuldabréfi, mögulegu veðleyfi o.fl. - kr. 2.700 af hverju skjali.
3. Lántökugjald lánastofnunar. Nánari upplýsingar á t.d. heimasíðu lánastofnana.
4. Umsýslugjald til fasteignasölu skv. gjaldskrá.
Ár
Fasteignamat
Kaupverð
Stærð
Fermetraverð
15. júl. 2021
39.850.000 kr.
43.800.000 kr.
89 m²
492.135 kr.
25. mar. 2019
34.600.000 kr.
37.250.000 kr.
89 m²
418.539 kr.
Byggt á upplýsingum úr Þjóðskrá Íslands frá 2006-2025