Upplýsingar
Verðsaga
Byggt 2006
110 m²
3 herb.
1 baðherb.
3 svefnh.
Þvottahús
Útsýni
Sérinngangur
Lýsing
Fasteignasalan Hvammur 466 1600
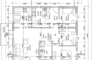
Stekkjartún 11 íbúð 201 - Falleg og vel skipulögð 4ra herbergja efri hæð í fjölbýlishúsi í austur enda í Naustahverfi - stærð 110,0 m²
** Eignin er laus til afhendingar við kaupsamning **
Eignin skiptist í forstofu, eldhús, stofu, gang, þrjú svefnherbergi, baðherbergi, þvottahús og geymslu. Sameignleg geymsla er á neðri hæðinni.
Forstofa er með flísum á gólfi og tvöföldum skáp.
Eldhús, flísar á gólfi og falleg hvít L-laga innrétting með flísum á milli skápa. AEG ofn og helluborð. Uppþvottavél fylgir með við sölu eignar.
Stofa og gangur eru með flísum á gólfi. Í stofu eru stórir suður gluggar og tvöföld hurð út á steyptar suður svalir, skráðar 7,6 m² að stærð.
Svefnherbergin eru þrjú, öll með flísum á gólfi og tvö með fataskápum. Stærð herbergja er skv. teikningum 8,5 , 9,5 og 13,0 m²
Baðherbergi er flísalagt bæði gólf og veggir, dökkar flísar á gólfum og hvítar á veggjum, hvít innrétting, upphengt wc, baðkar, sturta og handklæðaofn.
Þvottahús er við hliðina á forstofu, þar eru flísar á gólfi og hvít innrétting með skolvask og stæði fyrir þvottavél og þurrkara.
Geymsla er inn af þvottahúsinu með flísum á gólfi, hillum og opnanlegum glugga.
Á jarðhæðinni er sameiginleg geymsla/kyndikompa, skráð 9,5 m² að stærð.
Fyrirhugað fasteignamat eignar fyrir árið 2026 er kr. 71.000.000.-
Um skoðunar- og aðgæsluskyldu:
Í lögum um fasteignakaup nr. 40/2002 er kveðið á um ríka skoðunarskyldu kaupenda á fasteignum. Fasteignasalan Hvammur skorar því á væntanlega kaupendur að kynna sér vel ástand fasteigna fyrir kauptilboðsgerð og leita til þar til bærra sérfræðinga um nánari skoðun ef með þarf.
Forsendur söluyfirlits:
Söluyfirlit er samið af fasteignasala í samræmi við ákvæði laga nr. 70/2015. Þær upplýsingar sem fram koma í söluyfirliti þessu eru sóttar í opinberar skrár, til seljanda sjálfs og eftir atvikum til húsfélags. Seljandi veitir upplýsingar um eign í samræmi við upplýsingaskyldu laga um fasteignakaup nr. 40/2002. Fasteignasali sannreynir að þær upplýsingar séu réttar með sjónskoðun á eigninni.
Fasteignasali getur ekki fullyrt um ástand og eiginleika þeirra hluta fasteigna sem ekki eru aðgengilegir og sjást ekki berum augum, t.d. lagnir, dren, skólp og þak.
Stekkjartún 11 íbúð 201 - Falleg og vel skipulögð 4ra herbergja efri hæð í fjölbýlishúsi í austur enda í Naustahverfi - stærð 110,0 m²
** Eignin er laus til afhendingar við kaupsamning **
Eignin skiptist í forstofu, eldhús, stofu, gang, þrjú svefnherbergi, baðherbergi, þvottahús og geymslu. Sameignleg geymsla er á neðri hæðinni.
Forstofa er með flísum á gólfi og tvöföldum skáp.
Eldhús, flísar á gólfi og falleg hvít L-laga innrétting með flísum á milli skápa. AEG ofn og helluborð. Uppþvottavél fylgir með við sölu eignar.
Stofa og gangur eru með flísum á gólfi. Í stofu eru stórir suður gluggar og tvöföld hurð út á steyptar suður svalir, skráðar 7,6 m² að stærð.
Svefnherbergin eru þrjú, öll með flísum á gólfi og tvö með fataskápum. Stærð herbergja er skv. teikningum 8,5 , 9,5 og 13,0 m²
Baðherbergi er flísalagt bæði gólf og veggir, dökkar flísar á gólfum og hvítar á veggjum, hvít innrétting, upphengt wc, baðkar, sturta og handklæðaofn.
Þvottahús er við hliðina á forstofu, þar eru flísar á gólfi og hvít innrétting með skolvask og stæði fyrir þvottavél og þurrkara.
Geymsla er inn af þvottahúsinu með flísum á gólfi, hillum og opnanlegum glugga.
Á jarðhæðinni er sameiginleg geymsla/kyndikompa, skráð 9,5 m² að stærð.
Fyrirhugað fasteignamat eignar fyrir árið 2026 er kr. 71.000.000.-
Um skoðunar- og aðgæsluskyldu:
Í lögum um fasteignakaup nr. 40/2002 er kveðið á um ríka skoðunarskyldu kaupenda á fasteignum. Fasteignasalan Hvammur skorar því á væntanlega kaupendur að kynna sér vel ástand fasteigna fyrir kauptilboðsgerð og leita til þar til bærra sérfræðinga um nánari skoðun ef með þarf.
Forsendur söluyfirlits:
Söluyfirlit er samið af fasteignasala í samræmi við ákvæði laga nr. 70/2015. Þær upplýsingar sem fram koma í söluyfirliti þessu eru sóttar í opinberar skrár, til seljanda sjálfs og eftir atvikum til húsfélags. Seljandi veitir upplýsingar um eign í samræmi við upplýsingaskyldu laga um fasteignakaup nr. 40/2002. Fasteignasali sannreynir að þær upplýsingar séu réttar með sjónskoðun á eigninni.
Fasteignasali getur ekki fullyrt um ástand og eiginleika þeirra hluta fasteigna sem ekki eru aðgengilegir og sjást ekki berum augum, t.d. lagnir, dren, skólp og þak.
Ár
Fasteignamat
Kaupverð
Stærð
Fermetraverð
13. des. 2021
44.700.000 kr.
47.350.000 kr.
110 m²
430.455 kr.
7. sep. 2017
28.850.000 kr.
34.000.000 kr.
110 m²
309.091 kr.
26. mar. 2014
24.000.000 kr.
26.300.000 kr.
110 m²
239.091 kr.
28. feb. 2013
22.050.000 kr.
24.900.000 kr.
110 m²
226.364 kr.
20. jún. 2006
1.240.000 kr.
20.500.000 kr.
110 m²
186.364 kr.
Byggt á upplýsingum úr Þjóðskrá Íslands frá 2006-2026