Löggiltir fasteignasalar innan Félags fasteignasala:
Ástþór Reynir Guðmundsson
Vigdís R. S. Helgadóttir
Guðbjörg Helga Jóhannesdóttir
Gylfi Jens Gylfason
Sigrún Matthea Sigvaldadóttir
Sveinn Gíslason
Páll Guðmundsson
Þórarinn Arnar Sævarsson
Berglind Hólm Birgisdóttir
Þorsteinn Gíslason
Guðrún Lilja Tryggvadóttir
Brynjar Ingólfsson
Guðný Þorsteinsdóttir
Bjarni Blöndal
Þorsteinn Ólafs
Þórdís Björk Davíðsdóttir
Jóhann Kristinn Jóhannesson
Bjarný Björg Arnórsdóttir
Salvör Þóra Davíðsdóttir
Magga Sigríður Gísladóttir
Upplýsingar
Verðsaga
Byggt 1995
84,3 m²
2 herb.
1 baðherb.
1 svefnh.
Þvottahús
Sameiginl. inngangur
Bílastæði
Opið hús: 26. janúar 2026
kl. 17:30
til 18:00
Opið hús: Berjarimi 4, 112 Reykjavík, Íbúð merkt: 02 01 02. Eignin verður sýnd mánudaginn 26. janúar 2026 milli kl. 17:30 og kl. 18:00.
Lýsing
NÁNARI UPPLÝSINGAR FÆRÐU HJÁ GUÐNÝJU ÞORSTEINS Í SÍMA 7715211 EÐA GUDNYTH@REMAX.IS
SMELLTU HÉR OG SJÁÐU EIGNINA Í 3VÍDD
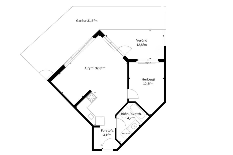
RE/MAX og GUÐNÝ ÞORSTEINS löggiltur fasteignasali, kynna í einkasölu: Berjarima 4, virkilega hugguleg 2gja herbergja íbúð á 1. hæð með sér afgirtri 44,4fm verönd/garði ásamt bílastæði í kjallara í eftirsóttu hverfi. Samkvæmt fasteignayfirliti ríkisins er íbúðin 52,6fm, geymsla 5,6fm samtals 58,2fm, auk þess er bílastæði í kjallara 26,1fm.
Íbúðin samanstendur af forstofu, svefnherbergi, baðherbergi með tengi fyrir þvottavél, eldhúsi/stofu ásamt sér verönd.
Nánari lýsing á eigninni:
Forstofa: Gengið er inn í anddyri þar sem forstofa er með góðu skáparými og flísum á gólfi.
Eldhús/Stofa/Borðstofa: Eru saman í björtu og flæðandi rými með útgang út á verönd. Harðparket á gólfi.
Verönd/garður: Er afgirt og er 44,4fm að stærð.
Herbergi: Er rúmgott með góðum nýlegum fataskápum. Harðparket á gólfi.
Baðherbergi/þvottahús: Er flísalagt með sturtu í baðkari. Aðstaða er fyrir þvottavél og þurrkara ásamt góðum skápum og vinnuborði.
Geymsla: Er 5,6fm að stærð og er staðsett í kjallara hússins.
Bílakjallari: Stæði er sérmerkt í kjallara hússins ásamt afnotarétti af dekkjageymslu, einnig er aðstaða til að þrífa bílinn.
Hjóla- og vagnageymsla eru á jarðhæð. Allar íbúðirnar í stigahúsinu hafa sameiginlegan geymslugang með nr. 6 í kjallara stigahúss nr. 8 með fullum umgengnisrétti.
Viðhald:
2024 - Skipt um glugga á 2 hliðum hússins
2024- Þak lagfært til bráðabirgða
2025 - Húsið múr viðgert og málað
Róleg og góð staðsetning á fallegum og grónum stað i Grafarvogi, stutt er í alla helstu þjónustu, skóla, leikskóla.
Í lögum um fasteignakaup nr. 40/2002 er kveðið á um ríka skoðunarskyldu kaupenda á fasteignum. Vill Re/Max því skora á væntanlega kaupendur að kynna sér vel ástand fasteigna fyrir kauptilboðsgerð og leita til þar til bærra sérfræðinga um nánari skoðun.
Gjöld sem kaupandi þarf að standa straum af vegna kaupanna:
1. Stimpilgjald af kaupsamningi - 0.8% af heildarfasteignamati / 1.6% fyrir lögaðila. (0.4% við fyrstu kaup einstaklinga).
2. Þinglýsingargjald af kaupsamningi, veðskuldabréfi, veðleyfi o.fl.- kr. 3.600 af hverju skjali.
3. Lántökugjald lánastofnunar - skv. gjaldskrá lánastofnunar
4. Umsýsluþóknun til fasteignasölu, 69.900 kr. m.vsk.
SMELLTU HÉR OG SJÁÐU EIGNINA Í 3VÍDD
RE/MAX og GUÐNÝ ÞORSTEINS löggiltur fasteignasali, kynna í einkasölu: Berjarima 4, virkilega hugguleg 2gja herbergja íbúð á 1. hæð með sér afgirtri 44,4fm verönd/garði ásamt bílastæði í kjallara í eftirsóttu hverfi. Samkvæmt fasteignayfirliti ríkisins er íbúðin 52,6fm, geymsla 5,6fm samtals 58,2fm, auk þess er bílastæði í kjallara 26,1fm.
Íbúðin samanstendur af forstofu, svefnherbergi, baðherbergi með tengi fyrir þvottavél, eldhúsi/stofu ásamt sér verönd.
Nánari lýsing á eigninni:
Forstofa: Gengið er inn í anddyri þar sem forstofa er með góðu skáparými og flísum á gólfi.
Eldhús/Stofa/Borðstofa: Eru saman í björtu og flæðandi rými með útgang út á verönd. Harðparket á gólfi.
Verönd/garður: Er afgirt og er 44,4fm að stærð.
Herbergi: Er rúmgott með góðum nýlegum fataskápum. Harðparket á gólfi.
Baðherbergi/þvottahús: Er flísalagt með sturtu í baðkari. Aðstaða er fyrir þvottavél og þurrkara ásamt góðum skápum og vinnuborði.
Geymsla: Er 5,6fm að stærð og er staðsett í kjallara hússins.
Bílakjallari: Stæði er sérmerkt í kjallara hússins ásamt afnotarétti af dekkjageymslu, einnig er aðstaða til að þrífa bílinn.
Hjóla- og vagnageymsla eru á jarðhæð. Allar íbúðirnar í stigahúsinu hafa sameiginlegan geymslugang með nr. 6 í kjallara stigahúss nr. 8 með fullum umgengnisrétti.
Viðhald:
2024 - Skipt um glugga á 2 hliðum hússins
2024- Þak lagfært til bráðabirgða
2025 - Húsið múr viðgert og málað
Róleg og góð staðsetning á fallegum og grónum stað i Grafarvogi, stutt er í alla helstu þjónustu, skóla, leikskóla.
Í lögum um fasteignakaup nr. 40/2002 er kveðið á um ríka skoðunarskyldu kaupenda á fasteignum. Vill Re/Max því skora á væntanlega kaupendur að kynna sér vel ástand fasteigna fyrir kauptilboðsgerð og leita til þar til bærra sérfræðinga um nánari skoðun.
Gjöld sem kaupandi þarf að standa straum af vegna kaupanna:
1. Stimpilgjald af kaupsamningi - 0.8% af heildarfasteignamati / 1.6% fyrir lögaðila. (0.4% við fyrstu kaup einstaklinga).
2. Þinglýsingargjald af kaupsamningi, veðskuldabréfi, veðleyfi o.fl.- kr. 3.600 af hverju skjali.
3. Lántökugjald lánastofnunar - skv. gjaldskrá lánastofnunar
4. Umsýsluþóknun til fasteignasölu, 69.900 kr. m.vsk.
Ár
Fasteignamat
Kaupverð
Stærð
Fermetraverð
1. nóv. 2021
31.250.000 kr.
42.900.000 kr.
84.3 m²
508.897 kr.
10. mar. 2015
16.750.000 kr.
22.900.000 kr.
84.3 m²
271.649 kr.
21. jún. 2007
14.265.000 kr.
17.300.000 kr.
84.3 m²
205.219 kr.
Byggt á upplýsingum úr Þjóðskrá Íslands frá 2006-2026