Upplýsingar
Byggt 1960
47,6 m²
2 herb.
1 baðherb.
1 svefnh.
Þvottahús
Útsýni
Sameiginl. inngangur
Lyfta
Lýsing
Íbúðin er SELD - Með fyrirvara!
ÚTSÝNI - BJÖRT OG FALLEG ÍBÚÐ Á 11. HÆÐ Í ÞESSU VINSÆLA HÚSI - 104 REYKJAVÍK.
Samkvæmt skráningu Þjóðskrár Íslands er birt flatarmál eignarinnar 47,6 fm. - Fyrirhugað fasteignamat 2026 kr. 48.000.000,-
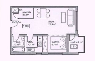
Um er að ræða íbúð á 11. hæð í steinsteyptu lyftuhúsi teiknuðu af Kjartani Sveinssyni og byggt árið 1960. Gengið er inn í forstofu/hol með fatahengi, til hægri er baðherbergið og eldhúsið þar við hliðina. Stofan er beint inn af forstofuholinu með svefnkrók inn af til hægri. Sér geymsla íbúðarinnar er til vinstri bið inngang, en þar er gott lokað geymslupláss. Á jarðhæð er sameiginlegt þvottahús, vagna- og hjólageymsla. Glæsilegt útsýni er úr íbúðinni.
Forstofa/hol: Parket á gólfi og fatahengi.
Eldhús: Eldri falleg innrétting og parket á gólfi.
Stofa: Björt með stórum glugga og glæsilegu útsýni, parketi á gólfi og útgangur út á svalirnar.
Svefnkrókur: Parket á gólfi og fataskápur.
Baðherbergi: Flísalagt og sturta.
- Ljósleiðari er kominn inn í íbúðina.
- Starfandi húsvörður er í húsinu.
- Tvær lyftur eru í húsinu.
- Þvottahús og þurrkaðstaða: Rúmgott og snyrtilegt með sameiginlegum vélum og endurnýjað á jarðhæð hússins.
- Húsfélagið hefur útbúið leiguíbúð í rými sem áður var samkomusalur og hyggst leigja út til tekjuöflunar í húsfélagið.
Samkvæmt upplýsingum eigenda hefur húsið fengið gott viðhald í gegnum tíðina, en töluvert viðhald hefur verið síðastliðin 10 ár, t.d. múrviðgerðir, málun og gluggaskipti.
Stutt er í leik-, grunn- og menntaskóla og einstaklega stutt er í sjálfan Laugardalinn, sundlaug, helstu verslun, þjónustu og helstu stofnæðar höfuðborgarsvæðisins.
Allar nánari uppl. og skoðun veitir: Jóhann Friðgeir, lgf. GSM: 896-3038 e-mail: johann@hofdi.is
ÚTSÝNI - BJÖRT OG FALLEG ÍBÚÐ Á 11. HÆÐ Í ÞESSU VINSÆLA HÚSI - 104 REYKJAVÍK.
Samkvæmt skráningu Þjóðskrár Íslands er birt flatarmál eignarinnar 47,6 fm. - Fyrirhugað fasteignamat 2026 kr. 48.000.000,-
Um er að ræða íbúð á 11. hæð í steinsteyptu lyftuhúsi teiknuðu af Kjartani Sveinssyni og byggt árið 1960. Gengið er inn í forstofu/hol með fatahengi, til hægri er baðherbergið og eldhúsið þar við hliðina. Stofan er beint inn af forstofuholinu með svefnkrók inn af til hægri. Sér geymsla íbúðarinnar er til vinstri bið inngang, en þar er gott lokað geymslupláss. Á jarðhæð er sameiginlegt þvottahús, vagna- og hjólageymsla. Glæsilegt útsýni er úr íbúðinni.
Forstofa/hol: Parket á gólfi og fatahengi.
Eldhús: Eldri falleg innrétting og parket á gólfi.
Stofa: Björt með stórum glugga og glæsilegu útsýni, parketi á gólfi og útgangur út á svalirnar.
Svefnkrókur: Parket á gólfi og fataskápur.
Baðherbergi: Flísalagt og sturta.
- Ljósleiðari er kominn inn í íbúðina.
- Starfandi húsvörður er í húsinu.
- Tvær lyftur eru í húsinu.
- Þvottahús og þurrkaðstaða: Rúmgott og snyrtilegt með sameiginlegum vélum og endurnýjað á jarðhæð hússins.
- Húsfélagið hefur útbúið leiguíbúð í rými sem áður var samkomusalur og hyggst leigja út til tekjuöflunar í húsfélagið.
Samkvæmt upplýsingum eigenda hefur húsið fengið gott viðhald í gegnum tíðina, en töluvert viðhald hefur verið síðastliðin 10 ár, t.d. múrviðgerðir, málun og gluggaskipti.
Stutt er í leik-, grunn- og menntaskóla og einstaklega stutt er í sjálfan Laugardalinn, sundlaug, helstu verslun, þjónustu og helstu stofnæðar höfuðborgarsvæðisins.
Allar nánari uppl. og skoðun veitir: Jóhann Friðgeir, lgf. GSM: 896-3038 e-mail: johann@hofdi.is